Brief & Compliance
The objective was to deliver a Changing Places facility that aligns with current UK guidance, including the Changing Places Consortium and Approved Document M. This meant ensuring sufficient space for wheelchair users and carers, safe assisted transfer through a ceiling track hoist, and the inclusion of height-adjustable equipment to support a wide range of needs.
Within a building such as St Paul’s, achieving these requirements is not straightforward. The design had to work harder — using the available footprint efficiently while still maintaining the clearances and functionality expected of a fully compliant CPT.
This project is underpinned by a long-standing accessibility challenge.
Nearly a decade ago, Karen Hoe OBE began advocating for a Changing Places facility at St Paul’s Cathedral after being unable to attend an OBE service with her son due to the absence of suitable facilities.
Her continued persistence played an important role in driving the conversation forward. She attended the official opening of the completed facility, marking a significant milestone both personally and for the wider Changing Places Toilet movement.
What’s Inside: Our Specification
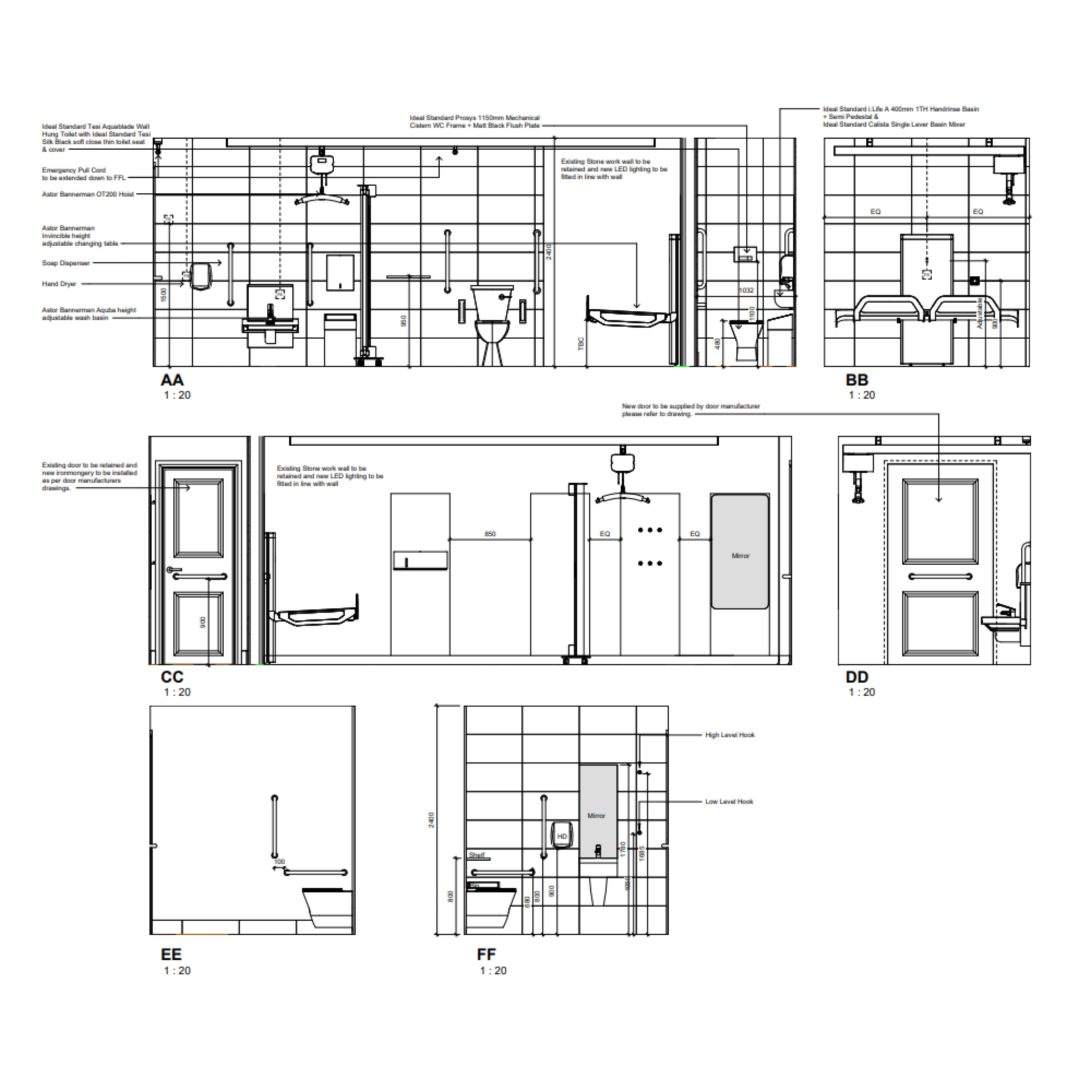
Astor Bannerman supplied a complete Changing Places solution, comprising:
- Astor OT200 Ceiling Track Hoist System – with bespoke track layout to provide full coverage across the WC and changing area
- Astor Invincible Height-Adjustable Changing Table – electrically operated, designed for safe assisted changing in public environments
- Astor Aquba Height-Adjustable Wash Basin – supporting both independent and assisted use
- Kwickscreen Privacy Screen System – flexible screening solution to maintain user dignity
- HEWI Grab Rails – positioned in line with Changing Places guidance for safe transfers and support
Working Within a Heritage Environment
Delivering accessibility within a Grade I listed structure introduces a layer of technical complexity that goes beyond a typical installation.
At St Paul’s, structural constraints limited fixing locations for ceiling-mounted equipment, while restricted service routes required careful planning for power and drainage. Every intervention also needed to be considered in the context of the building’s historic fabric, ensuring that the visual and physical impact was kept to an absolute minimum.
This is where early coordination proved critical. Close collaboration between contractor, consultants, and specialist suppliers allowed the design to evolve in response to the building, rather than forcing a standard solution into an unsuitable space.
Accessibility Across the Site
Accessibility at St Paul’s Cathedral has been developed to improve inclusivity within the constraints of a historic, Grade I listed building.
Due to the age and structure of the cathedral, step-free access cannot be provided throughout. However, key areas have been made accessible where possible:
- Step-free access to the main cathedral floor via the North Transept entrance
- Lift access connecting the cathedral floor and the crypt
- Step-free access to the Crypt and Quire, with additional lift and stairlift provision
- Wheelchair access supported within key public areas, subject to lift size constraints
Additional measures are in place to support a wider range of access needs:
- Wheelchairs available for visitor use
- Assistance dogs permitted throughout the cathedral
- Multimedia guides, including audio description and BSL content
- Touch tours and accessible resources for visitors with visual impairments
- Hearing loop systems installed within key areas
Due to the building’s historic layout, some areas — including the dome galleries and Triforium — remain accessible by stairs only, with significant level changes and no lift provision.
Outcome & Conclusion
The completed Changing Places facility provides a high-quality, fully compliant solution within a uniquely challenging environment.
Beyond the technical achievement, the project represents a meaningful step forward in inclusive access, ensuring that individuals who were previously unable to visit St Paul’s Cathedral can now do so.
Get In Touch
If you’re working on a heritage or complex site and want to ensure accessibility is considered from the outset, our team can help.
From specification through to installation, we support architects, consultants and operators in delivering fully compliant, practical Changing Places facilities.



